Kontrast umschaltenHier können Sie den Modus mit hohem Kontrast umschalten.
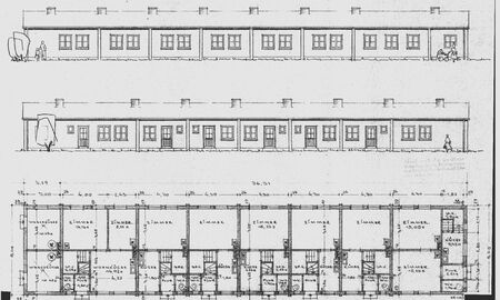
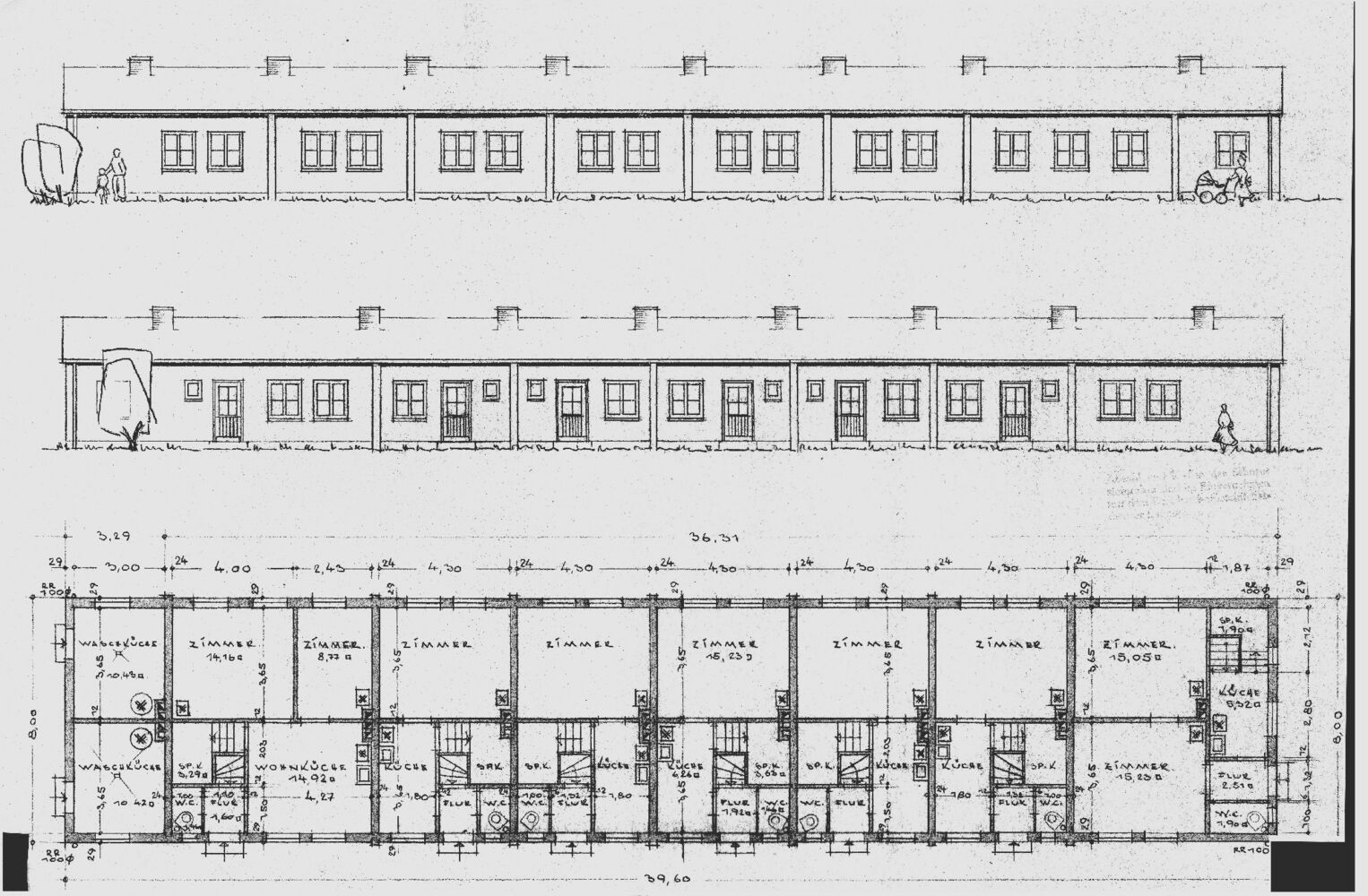
So steht es in den Bauzeichnungen tatsächlich drin.
Planungen 1959Kieler Wohnungsbaugesellschaft
Anfangs gab es auch noch Holzhäuser.
Oben > WaschtagUnten > Schrauberparadies
Magnussen, Friedrich (1914-1987) - Stadtarchiv Kiel
Erstellt: 1. Januar 1974